上小山田町6号棟の基礎工事開始!

こんにちは。畠山です。

今年も残すところ、あと2か月をきりました。

10月も暑かったせいか、

あまり10月という季節を感じることが無かった様に思いますが、

ようやく朝晩の冷え込みが気になるようになり、

季節を感じるようになってきました。

ちょっと調子が悪いかも・・・と感じた時は、

「マヌカハニー」を飲んで、睡眠をしっかりとるようにしています。

睡眠をしっかりとって、休みの日にはテニスをして体を動かすことで、

体調を崩すことなく、毎日を過ごせています。

秋をこれから感じるのかな???と思いつつ、

まさか・・・・これからは毎年夏の次は冬になったりするのかな???と考えつつ、

これもすべては地球温暖化の影響かなと思いながら、

少しでも地球温暖化が防止出来る様な家造りをしていきたいと思いますので、

どうぞ皆様よろしくお願いいたします!


さて、先週は天気が悪く、思うように現場が進みませんでしたが、

上小山田町6号棟の基礎工事が始まりました。

今回の現場は高台という事もあり、重機を上に上げる事から始まります。

この位段差があると、レッカーで吊り上げますので、なかなか大変です。

私が言うのも何ですが、今回の様な現場は平地の現場と比較すると建築費が高くなります。

その分、土地代が少し割安だったりもしますが・・・。


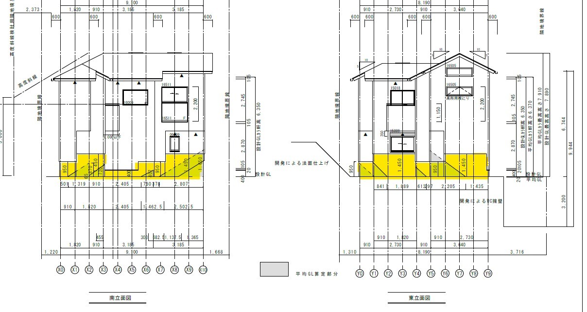
また、南側が斜め上に高くなっていますので、

建物の基礎を高くして土留めや安全性を確保する工事をします。

立面図を見るとこんな感じで「高基礎」になっています。

(黄色い部分です。)

現在はやり方工事が終わり、

掘削工事をしています。

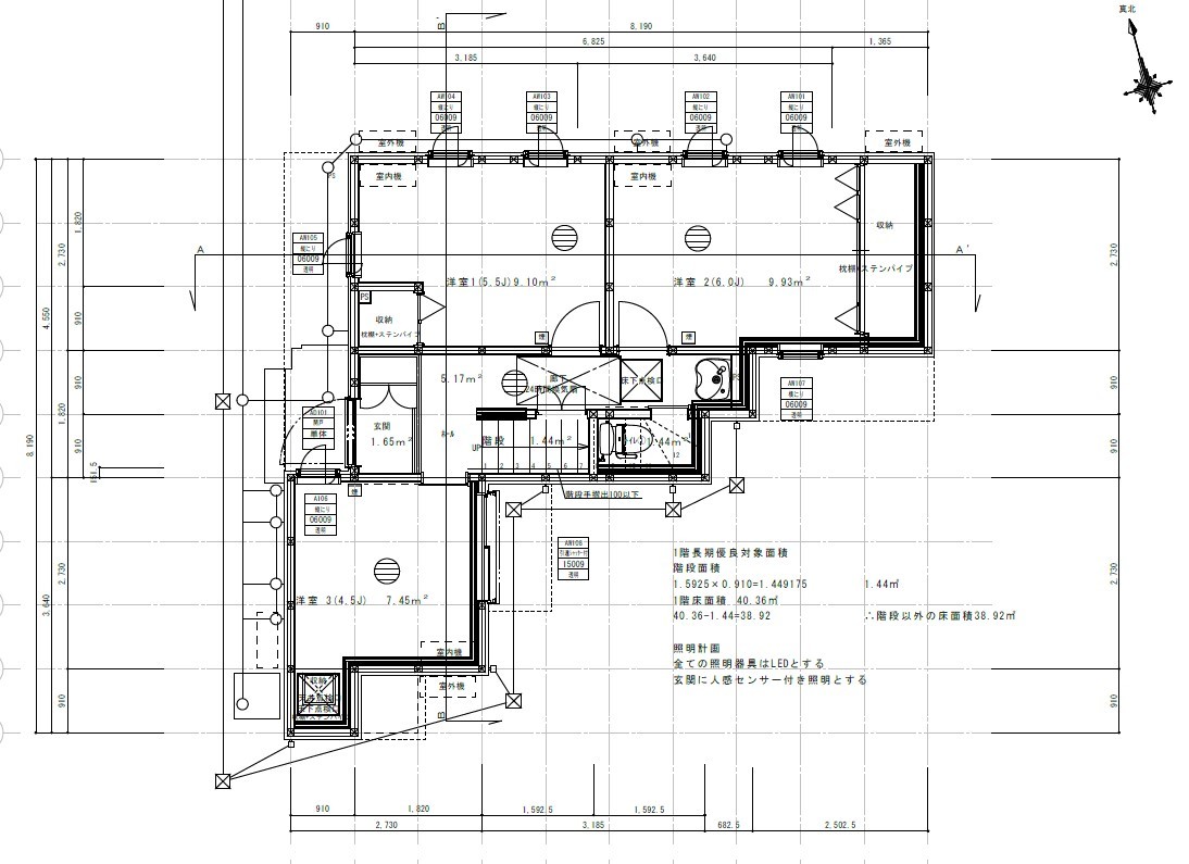
敷地には擁壁がありますので、擁壁に建物基礎がのらないように1階を計画しています。

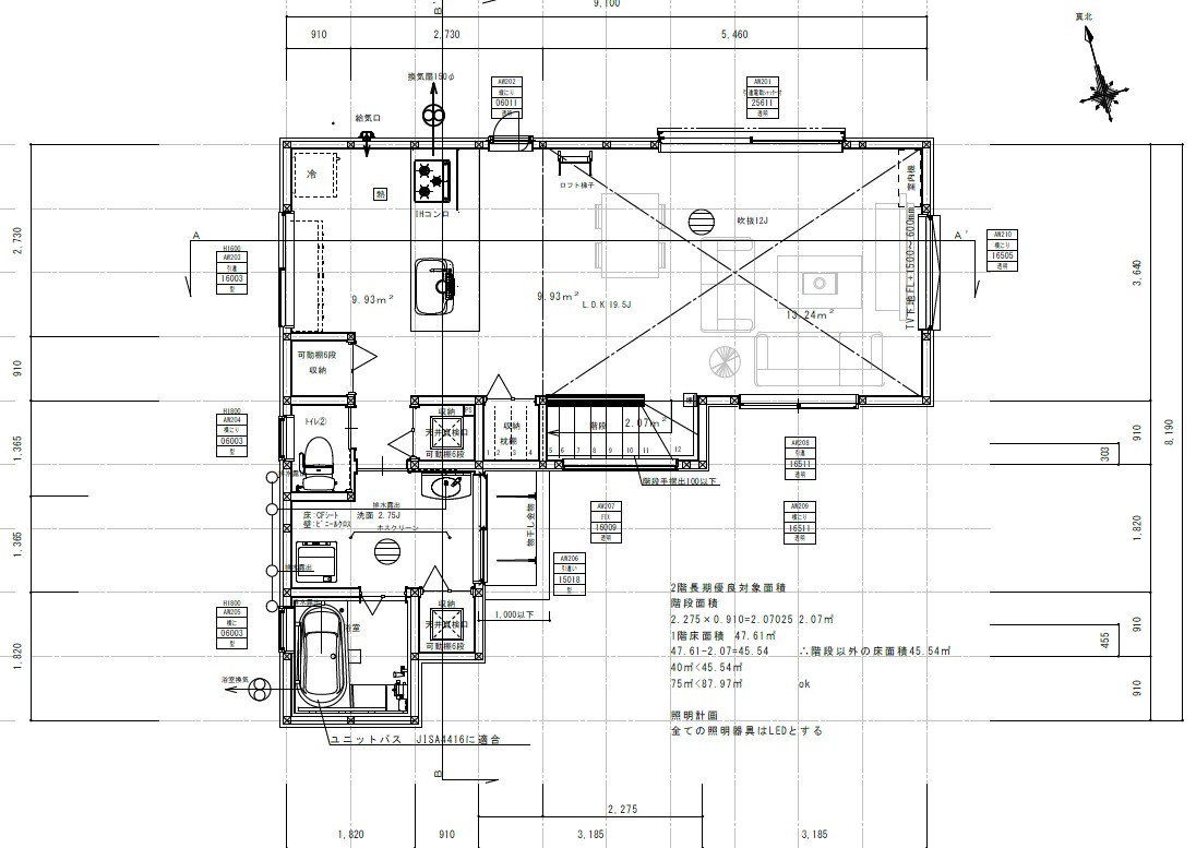
 総2階にすると、建物面積が小さくなるので、少しでも大きくするために、

耐震等級3を確保しつつ、

2階を1階よりはねだして造りますので、

2階の方が1階より大きくなっています。

 許容応力度計算の耐震等級3で、

長期優良住宅の認定を受けていますので、

とても安心ですね。

建物の計算方法は大きく分けて2種類ありますので、ご確認下さい。

また、地面に見える丸いのは地盤改良のために施工をした鋼管杭です。

この丸い鋼管杭の上にキャップをして、砕石を敷いて工事を進めます。

さて、こちらの現場ですが、12月初め~半ばに上棟工事の予定をしています。

基礎工事の途中で配筋工事見学会や基礎工事完成見学会などの現場でのイベントを予定しています。

現場で工事中の基礎を見ながら、気軽に色々と相談が出来る良い機会です。

決まりましたら、告知をしますので、

是非、現場にお越し頂ければと思います!

それでは今日はここまでにしたいと思います。

本日もお読み頂きありがとうございました!

 

コメント

コメントはまだありません。コメントを投稿する最初の1人になって下さい
登録済みですか? ここからログイン
ゲスト
2026年04月13日(月)

By accepting you will be accessing a service provided by a third-party external to http://kir634700.kir.jp/ideal/

Instagram

facebook

X(twitter)

八王子市で30坪台の平屋・二世帯住宅の注文住宅を建てる工務店はアイディール

モデルハウスの予約はこちら
間取りプラン集ダウンロード