上小山田町分譲の価格変更と6号棟が着工しました!

こんにちは。畠山です。

先日、ブログに「相模原市緑区相原5丁目」で15区画の現場が始まる旨のブログを投稿しました。

少し先の建築にはなりますが、モデル兼分譲住宅を9区画に建築をする予定で、

間取りはおおよそこんな感じで良いかとまとまりました。

どのような仕様で建築をするか、工事にかかる予算を積み上げながら検討をしています。

色々と検討をしている中で、

よく話題に出るのが、東京都の助成金です。

先日、着工をした上小山田町6号棟は助成金をもらえる事を見越して仕様を決めましたが、

神奈川県は出ないのが悩ましいところです。

町田市上小山田町6号棟の助成金は、

「東京ゼロエミの水準3」を取得しているので「210万円」助成予定、

もらえる方は限られますが「子育てエコホーム」で「100万円」、

太陽光パネルで「40万円程度」と最大で「350万円」程度もらえます。

大きいですよね・・・。

相原はどの仕様で建てるか・・・、

完成後は売却をしますので高スペックになりすぎても販売価格が高くなりますし、

モデルとして見て頂きたいのであまり低スペックでは見に来た方の参考にならないし、

どうしようかなぁと色々と悩み中ですが、ようやく仕様が見えてきました。

快適な暮らしを保証するための「高気密、高断熱、耐震等級3」を軸として、

名前を決めていませんが、

設備が充実してじっくり建てたい方向けの仕様、

設備にこだわらない価格がリーズナブルで契約から引き渡しまでスピード重視な仕様を軸として、近いうちに公表が出来ればと思っていますので、

お楽しみにしておいてください。

さて今日は先ほど上記で話が出た、町田市上小山田町の価格変更のお知らせでからです!

区画全体の価格を100万円ずつ値下げしました。

住宅ローンの金利が上昇し、

人件費や建築費も高騰しており、

9月以降からは生コンが上がる・・・、

11月納品分から断熱材を値上げしてほしい・・・、

と言う様な話が現在、来ています。

いつが「建て時か」というのは人それぞれなので難しいところですが、

待っていても建築費は高騰するばかりかなと言う様に感じています。

また、3区画と4区画と5区画は間取りによっては「高基礎」が必要になりますので、

値下げした分を少しでも建築費の足しにして頂ければ良いかなと思っています。

今回、建築条件付きではありませんが、

弊社は工務店なので当然の事ながら、建築が出来ます。

土地探しから建物お引き渡しまで、ワンストップで出来ますので、

どうしようか悩まれている方は是非、ご相談を頂ければと思います。

「高基礎って何??」と言う方は、分譲地内の6区画は工事が始まりましたので、

工事が進んだ段階で現場を見に来て頂けるとイメージがわくかと思います。

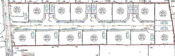
販売図面はこちらです。

現在は地盤改良工事まで終わりました。

ようやく、基礎工事が始まります。

当初はいつ頃の建築予定だったかを忘れてしまうくらい、

ここに来るまで、本当にとても長かったです・・・。

長かったついでに言うと、「中山2期工事」は11月から工事再開の予定です。

色々と原因があって工事が遅れており、致し方ない部分もありますが、

何だか・・・町田市、八王子市、相模原市と色々と重なりそうです・・・。

弊社あるあるなのか、建築あるあるなのか、本当に現場が重なりそうです・・・。

でも、現場が無いより良いか!と前向きに考えて、今日はここまでにしたいと思います!

本日も、お読み頂きありがとうございました!

 

コメント

コメントはまだありません。コメントを投稿する最初の1人になって下さい
登録済みですか? ここからログイン
ゲスト
2026年04月13日(月)

By accepting you will be accessing a service provided by a third-party external to http://kir634700.kir.jp/ideal/

Instagram

facebook

X(twitter)

八王子市で30坪台の平屋・二世帯住宅の注文住宅を建てる工務店はアイディール

モデルハウスの予約はこちら
間取りプラン集ダウンロード