こんにちは。畠山です。
今日(6/16)の日経新聞の朝刊に「都内の戸建て100万円超高く」の記事がありました。
詳しくは新聞を購入して読んで頂きたいのですが、
東京は2025年4月以降からある規模の住宅の供給をする会社には、
太陽光パネル設置の義務付けになりますから、建築コストが上がる要因になるでしょうか。
2025年4月から変わるということでもう一つ、こんな通知が先日審査機関から届いていました。
家造りが大きく変わってきますね。
こちらも建築コストが上がる要因になるのではないでしょうか。
ちなみに、弊社は太陽光パネルに関してはお客様次第ということもありますが、
これから建築する分譲は設置します。
法改正に関しても、
省エネ性は「断熱等級6」、「HEAT20G2」程度、
「壁量計算」、ではなく「許容応力度計算」をしていますので、
こちらも特にこれから新しく何かをするということはなさそうです。
とは言え、住宅に携わり20年ちょっと。
毎日が勉強だなと感じる日々です。
と言うのも・・・・、
町田市上小山田町で計画をしている分譲住宅ですが、
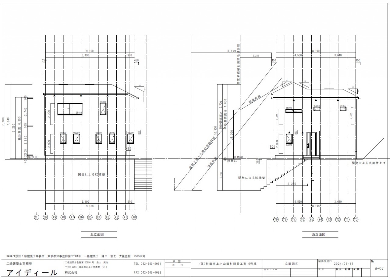
屋根形状&ロフトの大きさが高度斜線にあたり変更をすることになってしまいました・・・。
最初にその話を聞いた時は構造計算や省エネ計算も進めていたので「えっ?」と思いましたが、
よくよく設計士の話を聞くと、
道路の位置を青の部分までと勘違いしており、高度斜線が建物にあたってしまうとのこと。
その為、屋根形状&ロフトの大きさを変更しないといけない、
という状況になってしまったようです。
ちなみに、現在2期工事の宅地造成の申請を進めていますので、
将来的には「前面は全て道路」にはなります。
水色の部分から先がこれから造る「道路」です。
ですが「現時点」では「道路」ではありませんので、
高度斜線にあたり、
計画を変更しなければいけなくなってしまった・・・。
と、そんなお話です。
まぁ、自社で検討している建物なのでしょうがないか・・・と思いつつ、
お客様が検討している住宅だったら、「ゾッとするな・・・」と鳥肌が立つ思いです・・・。
そんな事を考えつつ、
それぞれのbeforeとafterを見てみて下さい。
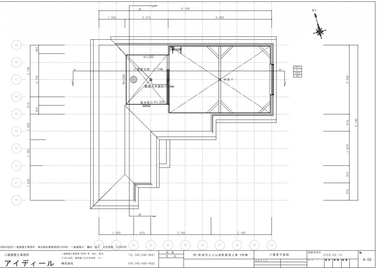
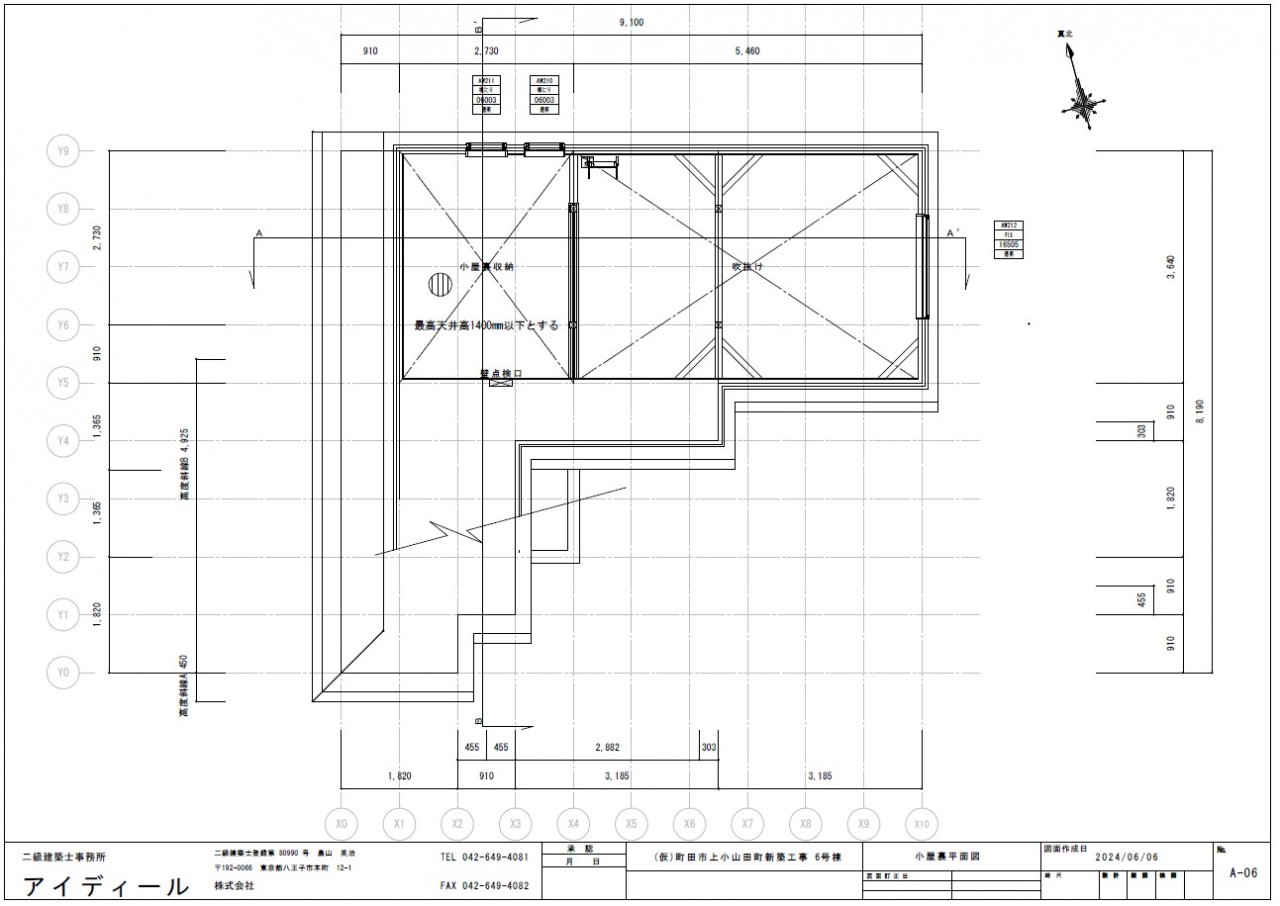
まずロフトのbeforeです。
次がafterです。
ロフトの面積が小さくなり、平面からは見えませんがロフトの天井の高さが低くなってしまったのは残念ですが、
少しでも収納があった方が良いという意向の元、ロフトは残す方向にしました。
こうなって良かった事は小さく低くなるので、「建物コスト減」になりますね。
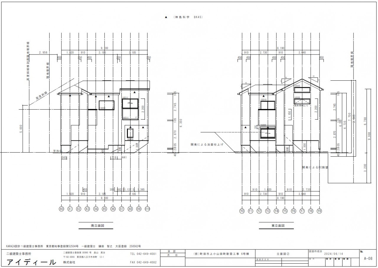
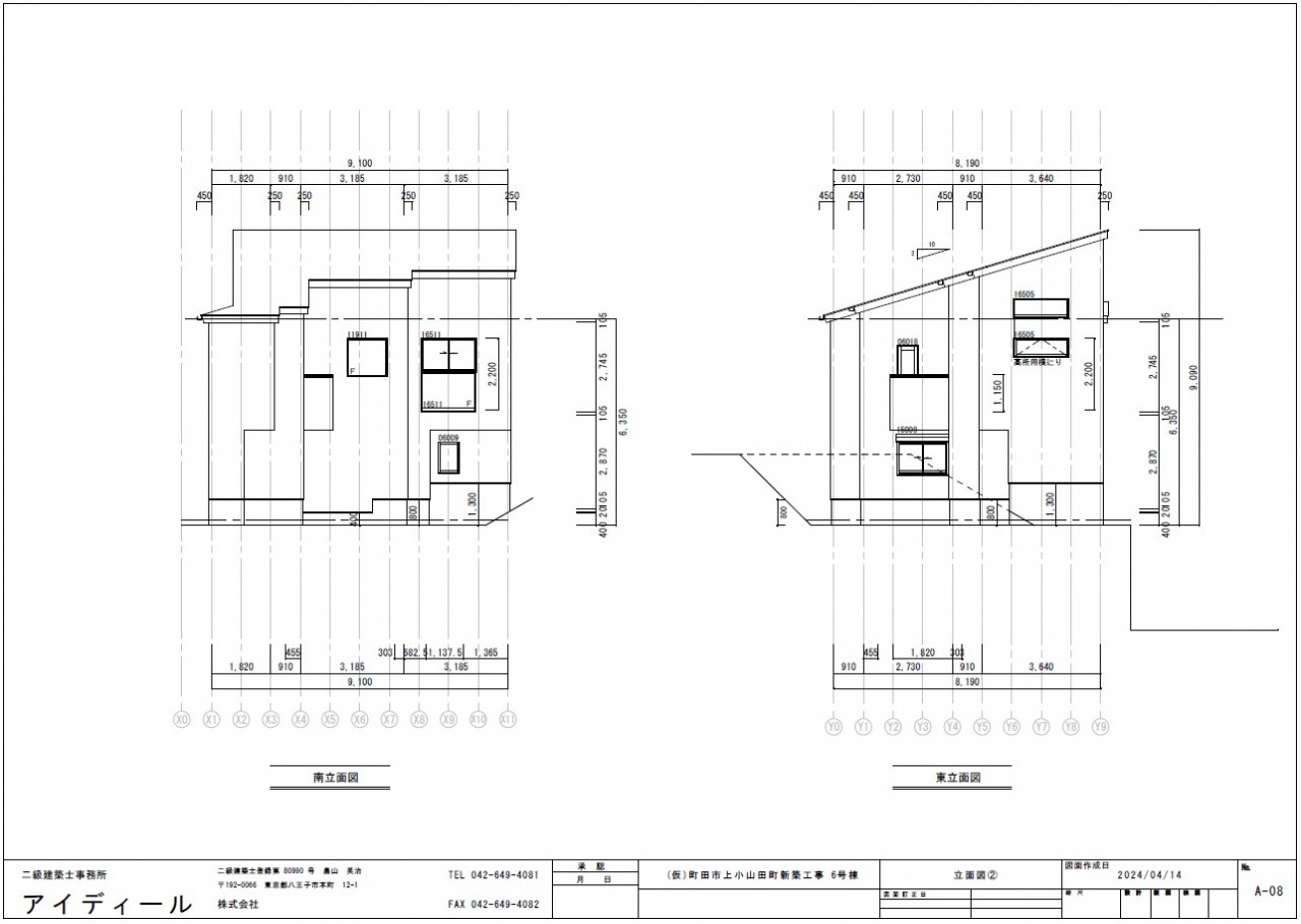
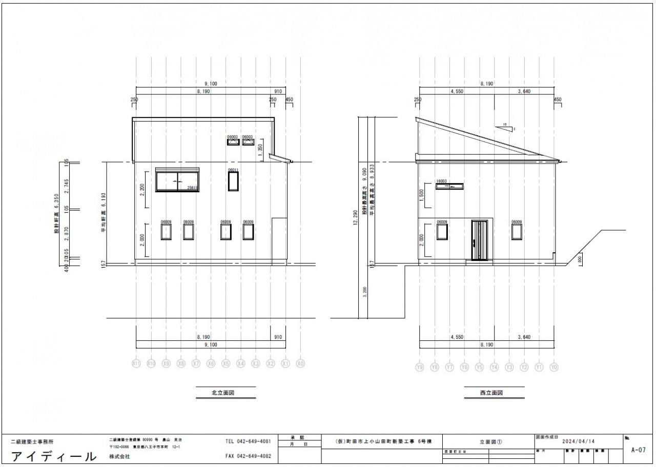
次に外観のbeforeがこちらで
変更後のafterがこちらです。
beforeは太陽光パネルを多く載せようとするための屋根形状でしたが、
afterは南に向く面が少なくなりますので、太陽光パネルの搭載枚数は減ります。
また、西側の屋根形状がシンプルになったことで、余計な外壁の面積が減りました。
こちらも「建築費のコストダウン」と将来的な外壁塗装費用が減りますね。
そして「軒の出」を少し伸ばす様に設計士に修正の依頼をしています。
伸ばして外壁にかかる雨水が減ることで、外壁が汚れにくくなるかなと思っています。
という事で、ポジティブに考えるとコストダウンに成功しました。
販売価格は建築確認が許可される頃に公開をしたいと思います。
さて、上の話にあるように、
家造りでは、
要望を全て取り入れて、
造ることが難しいケースがあります。
例えば、
太陽光パネルを載せると屋根形状や外観が決まってしまう、
間取りの要望を優先すると建物が大きくなってコストが上がってしまう、
これをやると○○が出来ないまたは〇〇になってしまう、
ということがよくあります。
注文住宅を検討している方はその様な事も楽しみながら家造りが出来ると良いですね。
ちょっとそういうのは面倒かも・・・という方は、
弊社が造る高気密高断熱の高性能分譲住宅をお勧めします!
と言っても、現在完成した販売中の分譲住宅は無いのですが、
これから、造る予定ではありますので、お楽しみにしておいてください!
町田市小山田町の着工が遅れそうですが、
現在、造成中の八王子市中山も計画変更後の工事開始が7月からとこちらも工事再開が遅れています・・・。
現在、相変わらずのこの状態ですが、
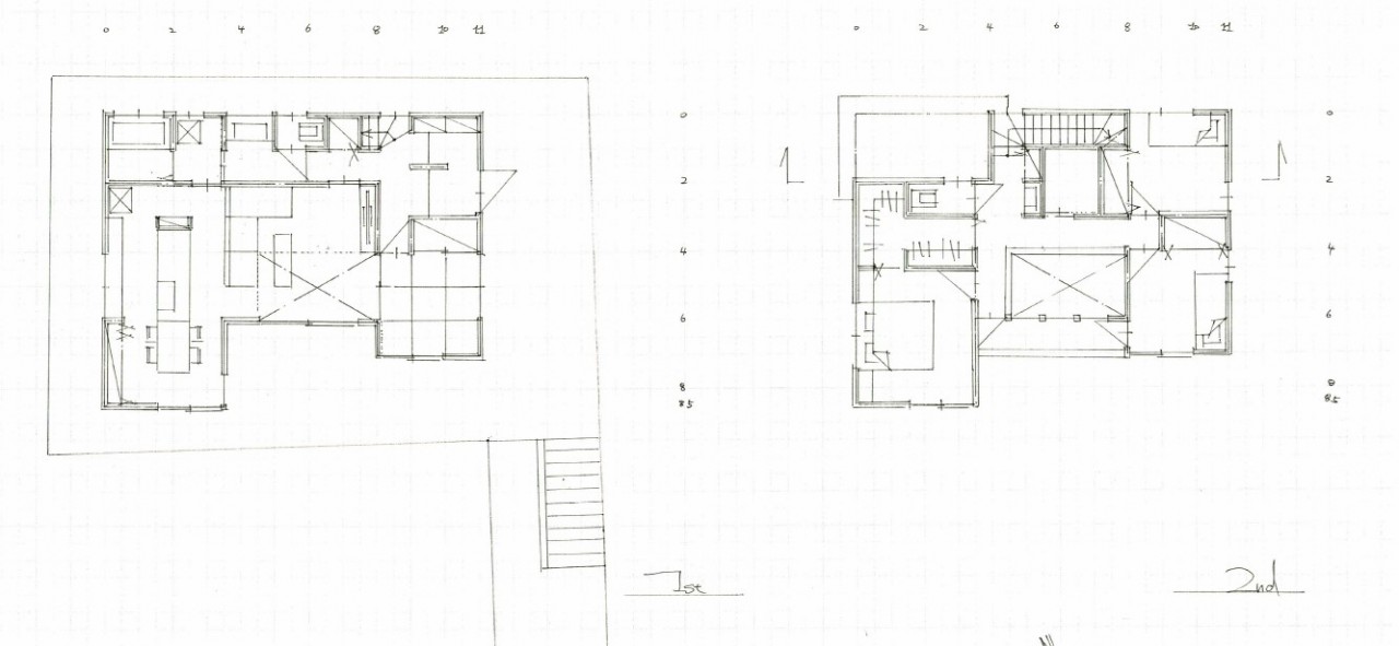
先日、セカンド・プランニングさんに建物プランの依頼をして、
下書きではありますが、こんな感じの建物を造ることが出来ますよ!
1期に比べると敷地が大きいので、建物を大きく造ることが出来そうです。
プランや販売価格は時期が来たらまたご紹介をしたいと思います。
といことで、今日はここまでにしたいと思います。
何かと遅れ気味な自社物件ですが、
少しずつ着工に向けて進んでいますので、その様子はまたブログで公開したいと思います!
本日もお読み頂きありがとうございました!
By accepting you will be accessing a service provided by a third-party external to http://kir634700.kir.jp/ideal/

