こんにちは。畠山です。
佐藤の金曜ブログでもふれていますが、
2/5(月)に降った雪の影響はみなさんどうだったでしょうか?
私は19時頃まで会社にいましたが、会社の前の道路はこんな感じでした。
なかなかの積雪量ですね。
車は置いて帰ることにしていて、バスで帰ろうかと思っていましたが、
東北出身の私としてはせっかくなので自宅まで少し歩いてみようかなと思い、
歩いてみました。
10分ほど歩き、会社から16号に出て撮影するとこんな感じで、
そこからさらに歩き、浅川橋から風景を撮るとこんな感じでした。
そこからさらに10分ほど歩いたところで、
バス停があり時刻表を見たらちょうど良い時間だったので待つことにしたのですが、
この雪の影響でバスも遅れ到着予定時刻から15分ほど待ちました。
乗れただけ良かったかなぁと思いつつ、家路に着きました。
それにしても、久しぶりに積もるくらいの雪だったでしょうか。
10年ほど前に大雪があったことを思い出しましたが、
その時は工事が大きく遅れましたが、今回はその様なことは無さそうです。
あの時の大変さを思い出し、それは本当に良かったなぁと思いました。
翌日は皆で雪かきをして、平常通りの営業を開始しました。
とここまでが、先日の大雪のお話で、今日の本題に入りたいと思います。
弊社で分譲中の町田市上小山田町ですが、
セカンドプランニングさんに参考プラン図を4宅地と6宅地に作成してもらいました。
まず全体の区画図です。
この区割り図を見るとこの様なマークがありますが、
これは北から南に上がって斜面があるという意味で、
南側が高く今回は芝生を敷いています。
夕方に撮影した写真ですが、現場はこんな感じになっています。
今回の様な新規の造成地はとてもきれいですが、
建物形状によって、高基礎が必要になりますので、
少しクセが強めの土地となっています。
ちなみに高基礎とは弊社の場合、地面から400mmの高さを標準としていますが、
それより高く上げることを高基礎と言います。
反対に地面より下に深くいれることを深基礎と言います。
その為、この分譲地を検討しようかなと思っている方は、
弊社で建築をする!というのであればその辺のお話はしっかり出来ますが、
今回は「建築条件付き」ではありませんので、
「ここで建てたい!」と思っている建築会社の方へ先に聞いてみて下さい。
おそらく、追加の費用が発生すると思いますので、あとから予算が足りなくなった・・・、
ということの無いよう事前の計画が大事です!
こういう土地では設計力がとても重要になりますので、
弊社のモデル兼分譲住宅の中山4号棟を設計して頂いた、
セカンドプランニングさんにプランを依頼しました。
うちからの要望としては、
2区画の共通要望事項として太陽光を載せたい、土地形状からリビングを2階ということ、
4宅地は家族構成2人又は2人+子の3人で高基礎の影響を受けないようにプランをしてほしい、
6宅地は3LDKで高基礎もいれて、一般的なプランを作成してほしいと伝えました。
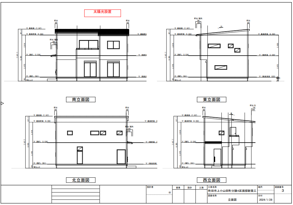
そこから出来上がってきたのがこちらです。
まず、4区画です。
高基礎もなく、建築費を抑えられているのではないかと思います。
次に6区画です。
こちらは高基礎があるプランです。
南側の基礎が高いのが立面図で確認出来るでしょうか。
これはコストが上がる要因になります。
今回は南に建物が寄るほど基礎高が高くなり、離れるほど低くなります。
以上の事から建物の大きさによっては高基礎の影響を受けないで建築が出来ますし、
高基礎を施工するのであれば3LDKも可能なので、ご興味のある方は是非、お問合せ下さい。
さて、気になる建物価格ですが、
弊社の高気密高断熱、断熱等級6(G2)、
C値0.6以下、
許容応力計算の耐震等級3、
長期優良住宅の認定取得と基本仕様はそのままで、
そこにライフアシストⅡを使うスマートハウス仕様、
外構工事も込とした価格で、
4区画プランは2,430万円で、
6区画プランは2,650万円で建築が可能です。
6区画は高基礎があり、建坪が大きいので値段が高いです。
上記の価格から、東京ゼロエミを取得するために設備機器のグレードを上げても良いですし、太陽光パネルや蓄電池を載せても良いと思います。
この価格は弊社が売主なので、出せる建物価格となっていますので、とてもお得です!
また実物を見たいという方は、
好評分譲中の中山4号棟で実際の仕様を見ることが出来ますので、
是非、お声がけ下さい!
近いうちに、建物価格をホームページで公開をしようと思います!
それでは、今日はここまでにしたいと思います。
本日もお読み頂きありがとうございました!
By accepting you will be accessing a service provided by a third-party external to http://kir634700.kir.jp/ideal/

