こんにちは。畠山です。
先日、都内にある取引をしたことの無い設計士から連絡があり、
弊社にお客様を紹介したいとのこと。
どんな設計士かホームページを確認すると、
おしゃれな家をやっているので、これは良い話だなぁと思い、
施工エリアが専務エリアだったので
話を聞きに専務に行ってもらうよう、
アポを取り日時を約束したところ、後日連絡があり体調が悪いということで延期に。
「まぁそれは、仕方無いね」と、話しをして、
そこから数週間後に定例会議でどうなったか聞いたところ、
「見積もりだけすぐに送ってほしい」との連絡があったとのこと。
仕様もよく分からず、お会いしたことも無く、話もよく分からないので、
「すぐには出せません」と話したところ、「今回は結構です。」とのこと。
こういうケース、こちらの勝手な推測ではありますが、おそらく意中の会社があって、
そこに決めたい「当て馬」的な見積もりで弊社の見積もりがほしかったのかなと。
今回の話に限らず、図面も無い、仕様も分からない、
そしてお客様と弊社で話が出来ていない様な場合は、見積もりを作成していません。
当然といえば当然の話なんですが、
「見積もりだけほしい」とか、
「ざっくり坪いくらですか?」とかそんな事を聞いてくる業者さんもいるのですが、
変だな、怪しいなと思った場合は見積もりをお出ししていませんので、
ご理解を頂ければと思います。
お客様に至っては、自分たちでしっかりとその施工を依頼する会社の話を聞いて、色々と比較、検討をした上で住宅会社を決めるのが良いですね。
弊社は断熱、気密、耐震が得意な工務店です。
皆様からの家造りのご相談をお待ちしておりますので、よろしくお願いします!
前置きが長くなったところで、
今日の本題ですが、中山5区画が成約となりました。
おかげさまで残すところ、建築中のモデル兼分譲の4区画と6区画のみとなりました。
6区画の現地写真です。
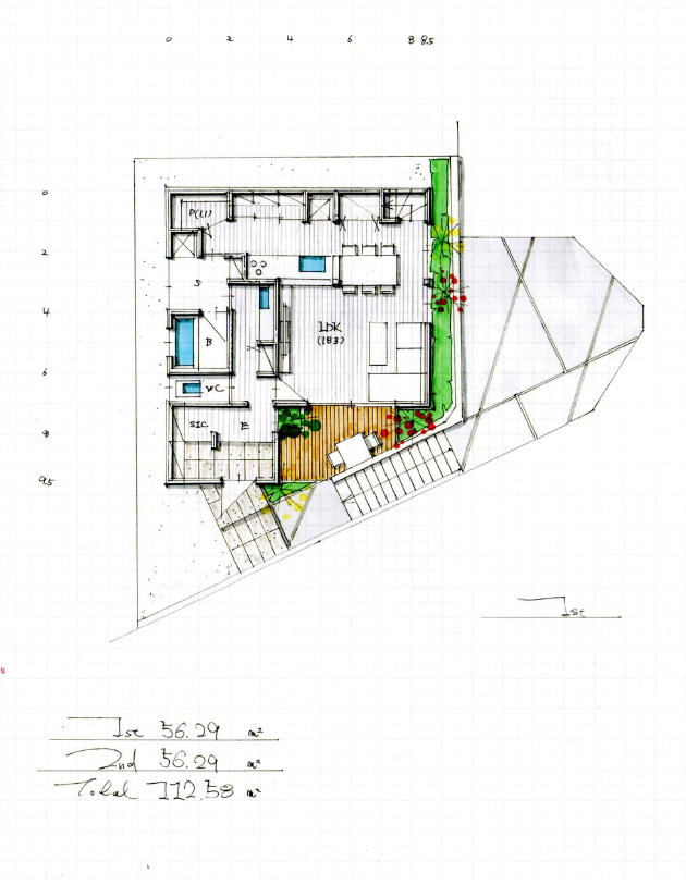
弊社が提案する参考間取りはこんな感じです。
南側は市街化調整区域となっていますので、陽当たり良好です!
ご希望があれば上記のプランで販売をすることも可能なので、ご興味がある方は是非、お問合せ下さい!
さて、モデル兼分譲として建築中の中山4号棟は順調に工事中です。
ちなみに下記の写真は別日に撮影していますので、明るさが違いますが、
そこはご了承下さい!
外は外装材の施工が終わり、これからコーキング工事、雨樋工事、足場解体と進みます。
玄関前の外装材は、本物に「木」を施工しました。
こちらは、チャネルオリジナルという、防火認定のとれている商品です。
全体に施工したいところですが、コストがかなり上がります。
コストを考え、メンテナンスもしやすいように、玄関の回りだけの施工としました。
本当によく見えます。
やはり、「本物の木」はとても良いです。
完成見学会は開催しますが、気になる方は是非、見学にいらしてください。
工事中ですが、室内も見学が出来ます。
1階です。
2階です。
室内も少しずつ木工事完了に向けて進んでいます。
先週は寒暖差がすごかったですが、現場に行ったところ、とても快適でした。
室内は暑い日が涼しく、翌日の涼しい日は逆に暖かかったです。
内田大工さんも、とても快適!と驚いていました。
5/7のブログでもふれたのですが、断熱性であるUa値は0.43ですが、
工事途中の中間C値が0.3と、
C値が良いのが原因でこの快適さが保たれているのかもしれません。
ということで、現場へ温度計を置いてきました。
置くなら室内の真ん中が良いのではということで、
1階はリビングに入ってすぐのところに、
2階は吹き抜けの手すり壁のところに置いてきました。
ちなみに、温度計は車に入れっぱなしだったため、温度が上昇していますので、
そこは気にしないでください。
是非、一度、この快適を体感しに来てください。
「暑い日」かまたは暑い日の翌日の涼しい日で「寒暖差がある日」が良いと思います。
しつこいようで申し訳ありませんが、本当に快適です。
ということで、今日はここまでにしたいと思います。
最後に来月の勉強会&相談会のスケジュールです。
お気軽にご参加下さい!
今週もお読み頂きありがとうございました!
By accepting you will be accessing a service provided by a third-party external to http://kir634700.kir.jp/ideal/

