こんにちは。やっと腰痛から解放された畠山です。
ちょうど先週の日曜日、チームアイディールとセカンド・プランニングさんとお客様と2時間ほどハードコートでテニスをしました。
ハードコートは簡単に言うと固いコートです。
私がいつもテニスをしているのは、オムニコートと言って、人工芝に砂が混じっているコートです。
ハードコートは固いコートだったので、足や腰に負担がくるかなぁと思っていたら、
案の定、月曜日は腰が曲がらないほどひどく痛く整体へ、火曜日から水曜日にかけて徐々に良くなり、現在、やっと元に戻った感があります。
また、今度みんなでやりましょう!と言って終わっているのですが、共通認識として、
もうハードコートは止めよう!ということになっています。
次回はオムニコートで4時間やろうと思っているので、ハードコートの2時間とどちらが翌日体がきついか、試してみようと思います!
さて、もう一つテニスの話ですが、先日3年ぶりに開催されている、
楽天ジャパンオープンテニスを見に有明コロシアムに行ってきました。
当日は荒天で、雨や風がとても強く、会場に着くまでに、びしょびしょになってしまいました。
外に出ているブースなども撮ろうと思ったのですが、入場するまでかなり人が並んでいたのと、
寒いせいもあり、さっさと会場の中に入り、試合を待ちました。
会場はインドアコートということもあり、室内は雨風がしのげますので、とても快適です!
日本人選手が負けてしまったのは残念でしたが、
今年の全米OPでベスト4に入ったティアフォー選手のプレーを見ることが出来たのはとても嬉しかったです。
ちなみに、観戦した席は2階からだったのですが、プレーはとてもよく見えました。
金額も1席4,000円と値段の割にはとてもお得に感じました。
当然ながら、テレビで見るよりも早さ、強さ、うまさを一つひとつのプレーで感じ、とても面白かったです。
来年は、もう少し近い席で見たいなと思い、会場を後にしました。
1年に1回の大会です。
テニス好きの人もそうでない人も、とても楽しめると思います!
是非、一度見に行ってみてください!
さて、テニス話が長くなったので、本題へ。
前回9/25(日)のブログで下記のプラン図から施工図面の作成に移ることをお伝えしました。
上のプラン図から施工図面が出来るまで約2週間くらいかかります。
注文住宅のお客様でいうと、上のプラン図が確定、下の施工図面が出来てから図面の最終打ち合わせをして、変更が無いか最終確認をしてから、長期優良住宅の申請や許容応力度計算の耐震等級3の計算に入ります。
長期の申請や計算のあとに図面の変更があると、やり直しになるため、ここで図面に変更が無いか、改めて確認をすることが大切です。
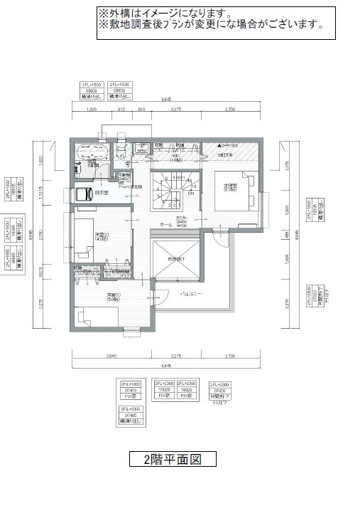
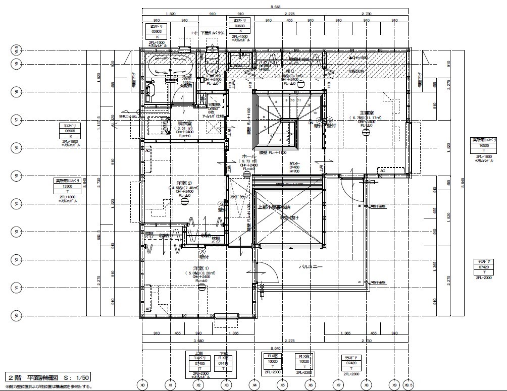
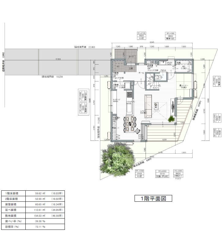
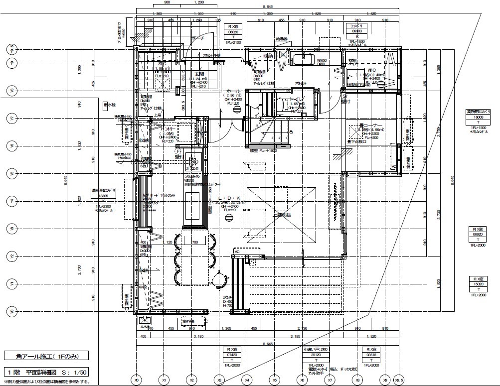
さて、下記が5号棟の平面図です。
プラン図より、さらに細かく色々と書いてあることが確認出来ると思います。
図面は出来るだけ細かく、分かりやすく、工事することは全て書き込むことが大切です。
また、持ち込みの家具や絶対に確保しておきたい寸法の数字や特別なこと(オプションなど)などは後から職人さんが見たときに分かるように必ず書き込む様にしましょう。
今回は分譲兼モデルでアイディールが売主ということもありますので、
あまり特別なことは記載されていません。
その他に、建物の位置が分かる配置図や
外観が分る立面図があります。
今回は長期優良住宅の認定は取得しないので、この図面でこれから許容応力度計算に入り、その間に仕様(商品の色など)を決めていき、
着工の時には全て決まっている状態にしていきます。
ここまでが、図面確定までの流れです。
もう一度、おさらいすると、注文住宅はプラン図確定から2週間で施工図面が完成、
その後、施工図面をお客様と最終確認、
修正をしてOKが出たら、
長期優良住宅を取得する場合は、申請から許可まで2か月~3か月で長期認定取得、
許容応力度計算の耐震等級3のみ取得する場合は、1か月~1.5か月かけて取得を目指します。
(富士見町は長期優良住宅の認定を取得しています。自由設計のため、時間がかかります。詳しくはお問い合わせ下さい。)
図面も決まり、販売価格も見えてきたところで、
これから、社内で仕様決めに入りたいと思います。
ちなみに、性能は、Ua値をまだ計算していませんが、おそらく0.4前後、
C値は1以下(直近の物件では中間で0.4と0.6)、
許容応力度計算の耐震等級3、
最大熱交換率90%の熱交換型24時間換気です。
高性能なので、そうでない住宅と比較すると光熱費はお得です。
最後にこの住宅に向いている方は、
住宅の性能に興味がある方、
高気密高断熱の住宅に住みたい方、
健康で長生きしたい方、
建てて終わりではなく弊社と一生お付き合いが出来る方(笑)
となっています!
ご興味がある方は建物や仕様の説明をしますので、弊社までお気軽にお問合せ下さい。
他の区画も建築条件無しで、好評分譲中です!
富士見町も見学は可能です!
皆さまからのお問い合わせお待ちしております!
By accepting you will be accessing a service provided by a third-party external to http://kir634700.kir.jp/ideal/

