こんにちは。畠山です。
最近、こちらの本を読みました。
アルコールが体に与える影響がとても詳しく書いてあり、内容が分かりやすく、
とても読みやすい本です。
詳しくは本を読んで頂きたいのですが、
私はこの本を読んで、そして健康診断の結果もイマイチだったこともあり、
最近は飲みを控えています。
テニスを週2回ほどしていますので、
健康だろうなぁと勝手に思っていたことも反省の一つです。
思い込みは本当によくありませんね。
暴飲暴食や食生活に気をつけないとダメだなと思い、気を引き締めるためにもこの本も買いました。
分かっているのですが、食べ過ぎ、飲みすぎはいけませんね。
まずは、食生活に気をつけたいところです。
飲みを控えて今更ながら気づいたのですが、
前日飲まないと朝の目覚めが良く、体調がとても良いです。
「健康、快適、省エネ、安心」をテーマに家造りをしている、
私としては、自分の健康にも気を付けて、1年に一回の健康診断ではなく、
定期的にかかりつけ医に行こうかなとか、思っています。
さて、「健康、快適、省エネ、安心」のモデル兼分譲住宅を八王子市富士見町に続き、
八王子市中山4区画に~緑のある暮らし~と題して建築することになりました!
この企画は「セカンド・プランニング」さんとコラボ企画です!
「セカンド・プランニング」さんのご紹介はこちらのHPで。
ちなみに「セカンド・プランニング」さんとは、テニス仲間です!
今度、チームアイディールと一緒にお客様と一緒にテニスをすることになりました!
その様子は、また今度お伝えしたいと思います!
さて、話は戻り、この分譲地は造成現場で街並みが緑に囲まれています。
今回は4区画に建築をします。
弊社から「セカンド・プランニング」さんにお願いをしたプランの要望で、
1番のメインは分譲住宅ですが高気密高断熱なので吹き抜けを設けたい、
建坪が大きいと高くなるので、30坪程度とお願いをしました。
最初に出てきたプランがこちらで、
そこから社内やセカンド・プランニングさんと色々と話をして、
もう少し建坪を大きくしようということになり、
このプランを作成してもらいました。
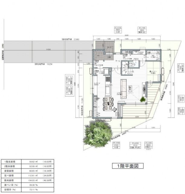
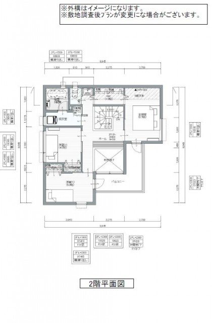
床面積が104.95㎡(31.68坪)から112.61㎡(33.99坪)と増えたことで、
大分変った気がしませんか?
それにしてもこの手書きのプラン、
CADも良いですが、手書きも味があるというか、雰囲気があるというか、とても良いですよね。
さらにそこから、再度実際に建築するということで検討をし、
最終的にはこのプランになりました。
浴室の位置を変えています。
ちなみに、太陽光を載せようと思ったのですが、
建物の高さや今回の敷地形状では建物にかかる斜線が厳しく、
載せたとしても1kwくらいとのことだったので、載せるのを止めました。
注文住宅もこの様な流れで、間取りの打ち合わせをしていきます。
さて弊社の場合の、「請負契約」までの流れですが、
初回の間取りのヒアリングを私又は専務が行います。
ヒアリングは、例えば3LDKや4LDK、リビングイン階段が良いとか、
車の台数とか、間取りの要望をなるべく細かく聞いていきます。
その後、そのヒアリングをもとに1回目の間取りのご提示、
見積もり作成までは無償で実施しています。
そこで、弊社の建物のおおよその金額や建物以外の金額を含めた総額をイメージして頂き、
設計契約を弊社と結んで頂き、上記の様な間取りの打ち合わせに入っていきます。
間取りが確定し、再度見積もりを提出し、この間取りだと○○円と出たところで、
「請負契約」を結び、施工図面(実施設計)の作成に入る、という流れになります。
施工図面は月末に「セカンド・プランニング」さんから届く予定となっています。
届いたら、弊社で建築する場合の次の工程をお伝えしたいと思います。
さて、この中山ですが、9/25の時点では、「建築条件なし」で土地の販売もしています。
問い合わせはポツポツと頂いていますが、今の時点で確定している物件はありません。
気になる方は是非、弊社までお問い合わせ下さい!
最後に、もう一つ宣伝ですが、八王子市富士見町も好評分譲中です。
Ua値0.29、C値0.6、許容応力度計算の耐震等級3、長期優良住宅認定、最新の設備と
分譲住宅とは思えない超がつくほどの高性能です。
.分譲住宅を購入検討のお客様、
注文住宅の参考にしたいお客様、
家造りをどこから始めたら良いか分からないお客様、
断熱気密の良さを体感したいお客様、
家造りにこだわりたいお客様、
工務店と家造りをしたいお客様は是非お越し下さい!
ちなみに、こちらの分譲住宅は弊社が売主でアットホームと弊社のHPでしか公開していません。
12月くらいまでは、現状のままで公開する予定なので、
気になるお客様は弊社までお気軽にお問合せ頂ければと思います。
それでは、今日はここまでにしたいと思います!
本日もお読み頂きありがとうございました!
By accepting you will be accessing a service provided by a third-party external to http://kir634700.kir.jp/ideal/

