こんにちは。畠山です。
今日は3月3日、ひな祭りですね。
そしてもう一つ。
今日はアイディールが誕生した創立記念日です!
弊社は2015年3月3日に設立をして、創立9年目になりました。
創立は3月ですが、
決算月は8月で会計上のルールでは現在10期目となります。
また、2022年3月から私が代表になり、2年が経過しました。
某王手不動産会社が在籍していた会社をM&Aをすることになり、
その会社を辞め、もう9年が経過しました。
当時は30代前半、
その話を聞いた時は今後どうなるの??とか、
会社が良くなるかも??と思った人もいたようで、
少ない情報から不安と期待が混じりながら日々を過ごしていたことを今でも思い出します。
それでも、色々な方々の協力や助けがあり、
このまま残るべきではないなと判断をして会社を辞めてアイディールを設立し現在に至っています。
設立当時は前職の流れもあり、
「いかに安く家を建てるか・・・」という方向で仕事をしていたと思います。
それはそれで、その時代の流れにあったやり方だったかなと思っています。
現在は安く建てるという事も大切ですが、
弊社の家造りのテーマである、
「快適、健康、省エネ、安心」して暮らせる家造りを基本として、
日々、技術の向上や商品の見直しをしながら、性能の向上を目指しています。
そういう意味では、「家は性能。」で知られる一条工務店さんは本当にすごいなと思います。
これから省エネ改正、4号特例の見直しなどもありますので、
さらに色々と変わってくることは間違いないですね。
となると、いつが買い時か・・・は、本当に難しいです。
前回のブログでも少しお金についてふれましたが、
建築コストが上がっている昨今、今後はもっと上昇するのではないかと思っています。
(2024年問題等詳しくは調べてみて下さい!)
初期コスト重視(安く建てたい)で家造りをするのなら、
性能はとことん落とせば良いと思いますが、長く住んでいると不健康になり、
快適ではない、省エネではない(エネルギーを浪費して、お金が溜まらない)暮らしが待っています。
性能を高めるほど、初期コストが上昇しますが、健康、省エネ、快適な暮らしが待っています。
もしかすると、高いお金だけとって、あれ?と言う様な家造りもあると思います。
その為に、公的な認証である、長期優良住宅や認定低炭素の認定を取得することをお勧めします。
比較するには、
価格、
公的な認証、
そして気密測定の様な現場計測、
が必要かと思います。
ちなみに、弊社は後者の家造りで、公的な認証や現場計測も実施していますので、
ご安心をして頂けるのでは無いかと思います。
創立記念日ということもあり、かなり前振りが長くなってしまいましたが、
どこにも負けない家造りの仕様となっていますので、
是非、ご相談に来て頂ければと思います!
それでは、今日の本題です。
町田市上小山田町6区画に新たに「モデル兼分譲住宅」を建築する予定です。
「モデル兼分譲住宅」は売りに出すものの、
皆さんの参考になるような家造りを目指しているので、
「モデル兼分譲住宅」としています。
まず全体の区画です。
ちなみに、昨日から1区画と3区画は100万円値下げをしています。
ご興味がある方はお問い合わせ下さい。
さて、現在の6区画の建物計画ですが、
1階が40.22㎡12.14坪 2階が47.46㎡14.32坪 延床面積87.68㎡ 26.47坪となっています。
仕様は弊社の注文住宅と同じ仕様で、
長期優良住宅認定、
断熱等級6、
C値0.6以下、
許容応力度計算の耐震等級3です。
他に、
東京ゼロエミ水準3仕様で、
オール電化、
太陽光パネル設置となっています。
気になる分譲価格は4,680万円を予定しています。
今までは完成をしてしばらくしてから価格を出していましたが、
よく聞かれるので、近いうちにHPで公開をする予定です。
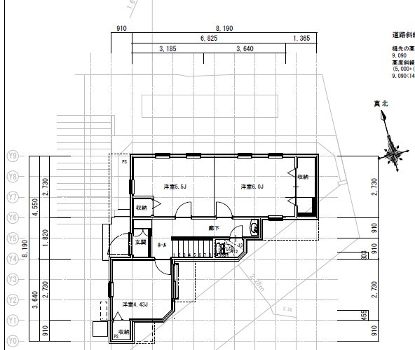
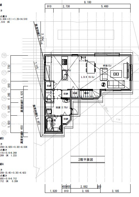
気になる間取りですが、
今回は2階リビングロフト付き、3LDKとなっています。
PDFを切り取っているので、不要な線が入っていますが、そこはご勘弁下さい、
まずは1階の間取りです。
2階の間取りです。
リビングのキッチン上に6畳のロフト付きとなっています。
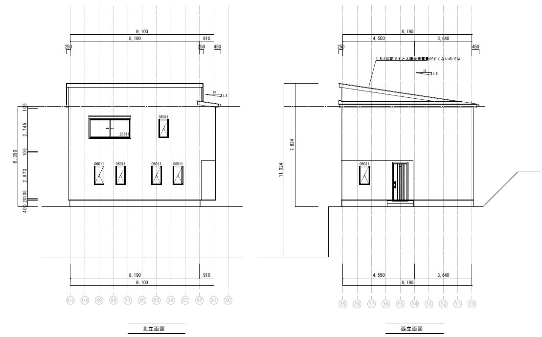
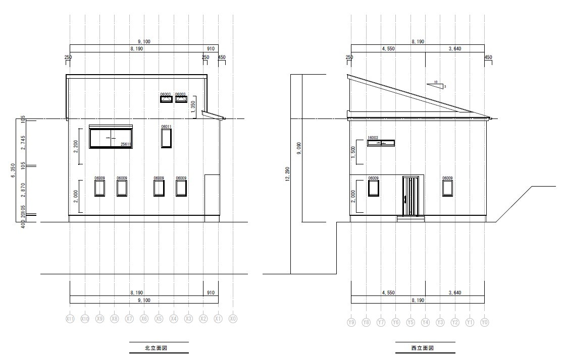
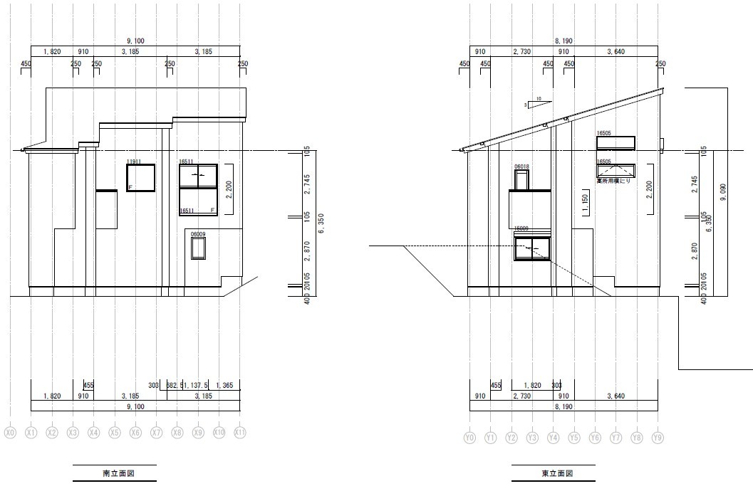
外観は太陽光を載せるため、片流れにしています。
北西面です。
南東面です。
余談ですが間取りを検討している最中、
ロフトの天井高さを確保して収納量を増やすか、
外観の見た目をとるか、悩みました、
上は屋根勾配を3寸しています。
当初は1寸で検討していました。
それがこちらです。
悩んだ結果・・・、ロフトの天井高を確保出来て(1.4m程度)、
収納が多く出来るという実用性をとることにしました。
外観の見た目より、実用性、うちらしい判断でしょうか???
ちなみに、現在売り出し中の「八王子市中山4号棟分譲住宅」も、
購入された方が、「購入して良かった!」と思えるような家を造っています。
これは弊社の「モデル兼分譲シリーズ」なので、出来ることです。
(弊社は建売業者ではなく、工務店なので。)
気になる方は是非見学にいらして下さい!
それでは、大分長くなってしまいましたが、
今日は創立記念なので、ここまでにして、もう帰ろうと思います。
今後ともアイディール一同、皆様どうぞよろしくお願いいたします!
By accepting you will be accessing a service provided by a third-party external to http://kir634700.kir.jp/ideal/

