こんにちは。畠山です。
さて、ご存知の様に、
トランプ大統領が4/2に発表をした、相互関税。
関税は、輸入品にかかる税金で、
関税がかかると国産品の保護につながる一方、
輸入品が値上がりするので、
私達の暮らしにも影響がでそうですね。
報道で見ると今回の税率は想定外だったようで、
今後の経済情勢がどうなっていくかは分からず、
色々な専門家の方が見解を述べています。
これから家造りをする方は、
金利がどうなるか、
物価(建築資材)がどうなるかが、
気になるところでしょうか。
この関税が発表される前はどちらも上がり調子でしたね。
関税が発表されて、
各社の株価は下がっており、
昨日の新聞には日米欧で約510兆円の消失、
新型コロナ渦で急落した2020年以来の大きさとありました。
これからどうなるか、想像がつきません。
さて、物価は分かりませんが、
金利の上昇は一旦ストップ・・・、という様な新聞記事も見かけました。
こちらもどうなるかは先の事なので、分かりませんが、
金利があまり上昇することなく、住宅ローンを組む方にとって良い方向になると良いなぁ・・・と思っています。
先が見通せないという不安がありますが、
先を心配してもきりが無いので、
やるべきことをやっていきたいと思います。
さて、そのやるべき事、最優先の第一弾ですが、
町田市上小山田町の土地が思うように売れず・・・、
どうしたものかと社内で喧々諤々と議論を重ね、
「建てないと売れないのでは・・・」、
という事で、現在間取りを検討しています。
建てないと売れない・・・、なぜ、そうなったか・・・。
1つは宅地の形状です。
まず敷地から道路をみます。
次に道路から敷地を見ます。
どうでしょうか。
そうなんです!
ご覧の通り、道路より宅地が下がっています。
これには、弊社の佐藤と現場に一緒に行って佐藤もビックリ!
「どう建てるんですか??」と聞いてきたのは、とても記憶に新しいです。
どうして、造成現場なのに道路より宅地が下がっているかと言うと、
ポイントは「擁壁」の高さにあります。
今回、「擁壁の高さを5m以下」に抑える様に造成工事をしています。
もちろんそれ以上にする事も出来るのですが、
そうすると、
1、東京都で5mを超えた「擁壁」の基準が無く構造計算等をしなくてはいけないので、造成費がかなり上がってしまうので販売価格がかなり高くなってしまう。
2、高さが高くなることで将来的な「擁壁」の傾きや沈みが心配
3、上記よりお引渡し後の安全性が心配
と言ったマイナス要素が出てきてしまうため、
5m以下に擁壁を抑えて計画、建物の方で検討しようという事で進めました。
その結果、道路と敷地で高低差があるので、
建築が専門で無い方が見ると、
「これどうやって建てるの???」と少々難しい土地になってしまったかもしれません。
弊社としては角地だし、陽当たりも良いし、と思っていましたが、
少々思い違いをしていたのかもしれません・・・。
以上の事から、建てないとダメかも!と思った次第です。
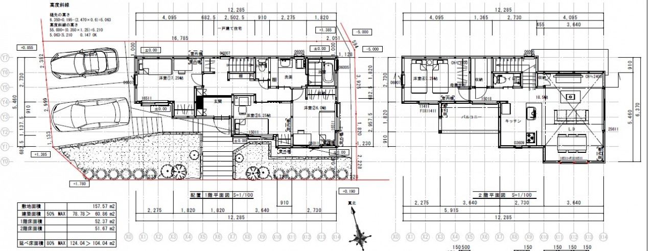
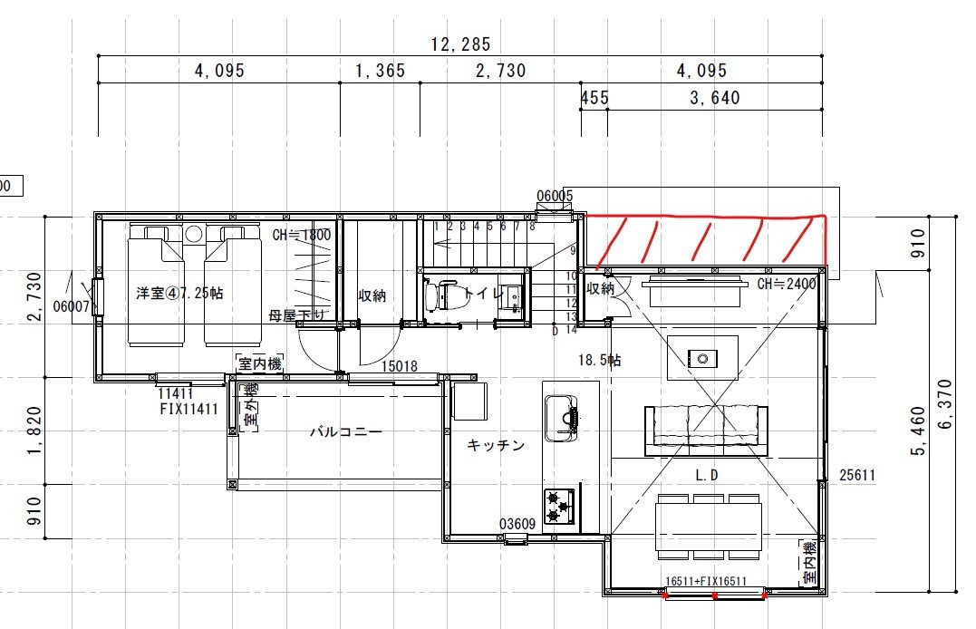
さて、計画をしてどんなプランが入った方と言うと、
1回目はこの様な間取りでした。
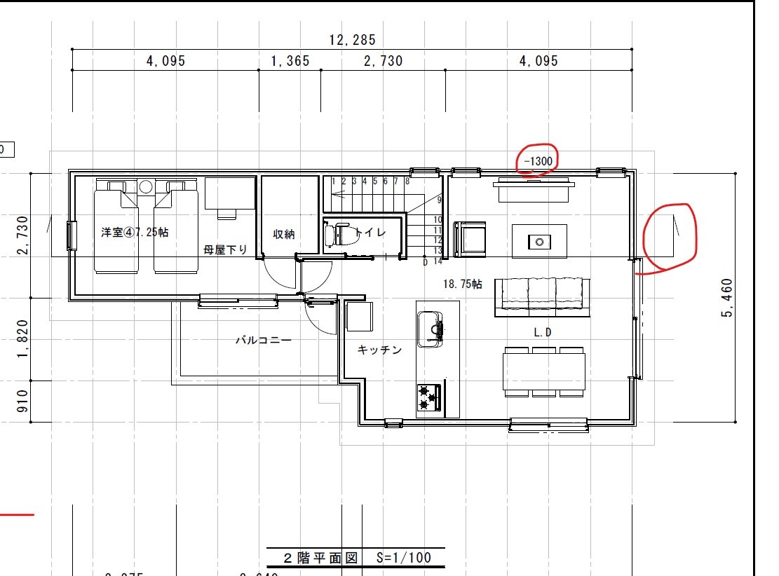
このプランでは、2階が二母屋下がりだったので、〇印の部分で天井高が1,300mmになってしまいます。
これは、さすがにNGなので、建物の全体の高さを調整したり、
天井の断熱材を性能は変えず商品を変えて310mmから180mmにしたり、
1階は寝室なので2,300mmの天井高にしたりと、色々と工夫をしました。
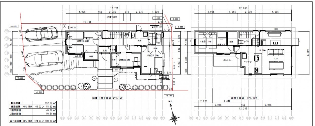
この点、弊社は「自由設計」なので現場に合わせた調整が可能です。
その他に、太陽光パネルを設置出来る様に屋根形状を変更したり、
玄関を広くしたり、
1階の洋室③を広くしたり、
リビングを勾配天井にしたり、
サッシの種類を変更したりと設計士と数回やり取りをして、
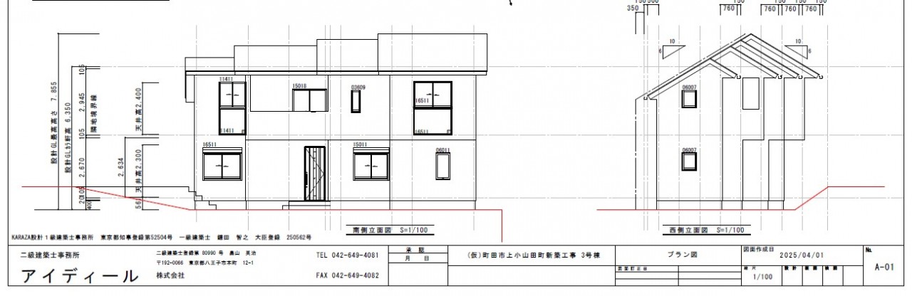
最終的に下記の間取りが出来ました。
この建物で耐震等級3、Ua値0.41前後で、
現在分譲地内で建築中の6号棟と同じ仕様にするか検討中です。
ちなみに、6号棟はかなり良い設備仕様です。
3号棟の方が建坪は大きいので、
そこまで良い設備にしなくても良いかなと、
現時点で思っています。
もうすぐ完成見学会を開催しますので、別の機会に告知をしようと思いますので、
是非、ご参加下さい。
おそらくこれが最終かなと思ってこのブログを書いていましたが、
図面を見ていたら、
この部分を広げて物入にしようとかと思ってきてしまいました・・・。
テレビの後ろにその様なスペースがあると、テレビ周辺の配線がスッキリしますね。
広げると金額上がるからコスト優先でやめるか・・・、
ちょっと皆に相談しようかな・・・、
と思いながら、今日はここまでにしたいと思います。
現場付近は桜が見ごろです。
もうすぐ満開です。
今年も見ることが出来るのは残り1週間ほどでしょうか。
ローケーションの良い、町田市上小山田町、是非見学にお越し下さい。
それでは、本日もお読み頂きありがとうございました!
By accepting you will be accessing a service provided by a third-party external to http://kir634700.kir.jp/ideal/

