こんにちは。畠山です。
先日、紅葉を見に奥多摩と、
昭和記念公園にお出かけをしてきました。
奥多摩の方はまだ見ごろとまではいきませんでしたが、
昭和記念公園は「秋の夜散歩」というイベントをやっていて、
ライトアップされていてとてもきれいでした。
特に下の写真は水面にもみじの木が反射してとても素敵です。
11/30まで木々をライトアップしているようなので、
お出かけしてみてはいかがでしょうか。
人は若干多いですが、景色が素敵で、自然に囲まれていますので、
自然好きな私としては、とてもリラックス出来ます。
夜はとても冷えますので、しっかりと防寒対策をして、
行ってみて下さい。
さて、もうすぐ12月。今年が終わるまで、あと40日をきったくらいでしょうか。
夜の冷え込みを大分感じる様になってきましたが、
ヒートショック対策は大丈夫でしょうか?
交通事故よりも多いと言われ、体に負担がかかることで、
心筋梗塞や脳卒中などの危険な病気を引き起こします。
お風呂に入る前、洗面所などを暖めて対策をしたいところですね。
寒くなってきたので、
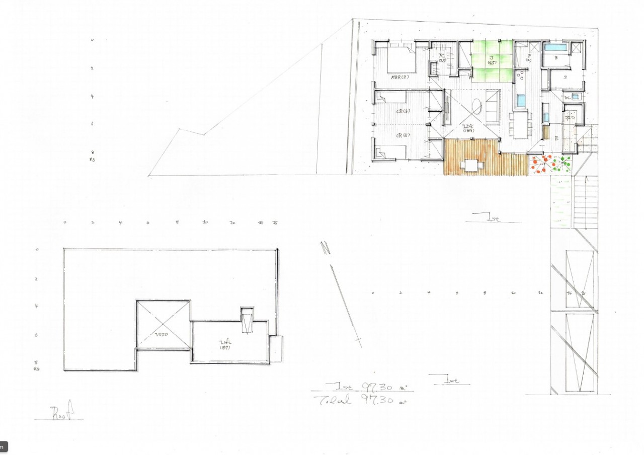
実際に建てた住宅の室温がどう推移するか、
販売中の町田市上小山田町6号棟で2階のエアコン(下の緑)を運転して室温の計測(赤に温度計)をしてきました。
断熱に関わる仕様は、「断熱等級6」、「Ua値0.41」、「C値0.42」と高気密高断熱仕様です。
まず、無暖房の状態で11/21(金)の10時半頃に現場へ行きました。
朝方5時~6時は3℃程度で10時には12℃になっています。
室内に入ると、
1階のホールと、
1階の南東部屋が約12℃、
2階のリビングが14.8℃でした。
そこでエアコンを23℃設定の連続運転、シーリングファンの運転をして
22日の10時前に計測に行きました。
外気温は3℃~4℃で推移しています。
1階のホールが14.5℃、
1階の南東部屋が15℃、
2階のリビングは22.6℃となっていました。
1階は3℃ほど上昇し、2階はほぼ設定温度となりました。
人が住めば、熱を放出するので、もう少し1階が暖まるかなと思いつつ、
エアコンを23時で運転が停止される様にタイマー設定をして現場を出ました。
23日は9時半頃に計測に行きました。
朝方8℃と前日より外気温が高いです。
これはもしかすると、室温があまり下がらないかなぁ・・・と思いつつ、
温度計を見ると1階のホールが15.1℃、
1階の南東の部屋が15.5度と、
23時に運転を停止したのに前日とあまり室温が変わらず、
2階のリビングは16.3度という結果でした。
2階リビングの室温は下がることは想定していましたが、
外気温が高いせいか、1階がわりと室温が下がらなかったな・・・という印象です。
もちろん、外気温近くの8℃くらいまで下がるよりは当然、良いのですが。
今回の測定は今日で終わりにしようと思っていたのですが、
明日は今日よりも2℃ほど寒そうなので、
明日、また確認してこようと思い、
エアコンを運転、23時に運転停止で設定をして、
現場をあとにしました。
上記はインスタのストーリーで公開をしようと思いますので、
是非、ご覧になって下さい。
フォロワーの登録もお願いします!
それにしてもこの建物は上のリビングの写真や下記の写真を見ても、
陽当たりがとても良いです。
窓の配置がとても良かった様に思います。
南側の窓は太陽光が入り、室内を暖めてくれます。
夏の日射対策は重要ですが、冬は貴重な暖房効果を発揮しますから、
窓が少ないと暖房効果を得る事が出来ませんね。
しかも太陽光は無料ですから、とてもお得です。
また、床材が「無垢床」なので足元がとても温かいです。
足触りもとても良く、おすすめの商品の一つです。
私、個人の感想としては、デメリットよちメリットの方が上回ります。
是非、体感にお越しください。
さて、今日はもう一つ。
前回のブログで平屋のプランの紹介をしましたが、
平面プランが出来上がりました。
3区画です。
4区画です。
平屋は敷地面積が大きくないとそれなりの大きさの建物を建てる事が出来ないのが難点です。
今回、6区画を分割することで、上記の大きさの平屋の建築が可能です。
6区画は斜面になっていますが、
例えば、ドッグランや家庭菜園など有効活用が出来るのではないかと思います。
写真を見れば分かって頂けると思いますが、
こちらの場所は「自然が好き」、「緑に囲まれて暮らしたい」、
「休日はゆったりと自宅で快適に過ごしたい・・・」と言う方にとても向いております。
詳しくは、早ければ・・・明日弊社のホームページで価格を公開する予定です。
ご興味がある方は、弊社までお問合せ頂ければと思います。
それでは、今日はここまでにしたいと思います。
本日もお読み頂きありがとうございました!
***このブログは私が書きました***
畠山 英治
代表取締役社長。
前職ではパワービルダーに勤務。現場監督、営業、支店長を経験。
M&Aをされる事になり、前代表とアイディールを創業。
2級建築士、1級建築施工管理技士補、2級建築施工管理技士、
宅地建物取引士、FP技能士2級、外皮マイスター、
グラスウール充填断熱施工技術マイスターを保有。
趣味はテニス。3児の父。次はバイクの免許に挑戦!?
家造りの事は何でもご相談下さい!
By accepting you will be accessing a service provided by a third-party external to http://kir634700.kir.jp/ideal/

