こんにちは。畠山です。
先週の月曜日は午後からお休みを頂き、みんなで食事をしてきました。
その様子が佐藤のブログに載っています。
食事はあきる野市にある某所で、
雪もチラつくなか、
とても美味しく頂きました。
「八王子の家をもっと快適に!」をPRするべく誕生した、
弊社のイメージキャラクターで「エコ八」がサプライズケーキで登場しました。
こんなの作れるんだ・・・と思いつつ、
当然の事ながら口の中が緑にはなりましたが、
皆で美味しく頂きました。
こちらは八王子の某所で作成が可能です。
お店が気になる方は是非、お問合せ下さい!
おすすめ出来ます!
さて、10周年の社内イベントも終わり、
先週はもう一つ嬉しい出来事が。
表題にある「町田市上小山田町6号棟新築分譲住宅」の「完成時の気密測定」を実施しました。
下記は前回のブログです。
中間測定で隙間を表すC値が0.8と、
社内基準で設けているC値が0.6以下ならず、大苦戦!
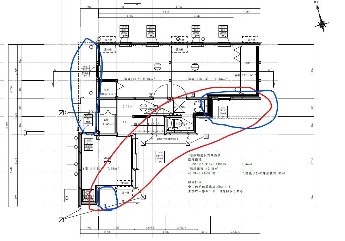
長方形や真四角の建物と異なり、
南側が少し特徴的な間取り(赤印)で2階が1階からはねだしている(青印)という事もあり、
今後は間取りによってC値0.6以下と言えないかも・・・と悲壮感が漂いながら、
中間測定を終えたのは苦い記憶となっています。
ちなみに完成測定は室内清掃が終わってからする事が多いのですが、
今回は万が一、C値が社内規定に満たないという不測の事態にそなえ、
外部に足場がある状態で、
窓からの漏気もあるのでサッシ屋さんを呼びサッシ調整をして、
大工さんの工事が終わり、外部に貫通はもうしないという状態で実施しました。
いつもの様に機械をセットして、
計測をすると、何と・・・・
C値0.4、厳密にいうと0.42ととても良い数値が!!!
これにはみんなびっくり!
一発OKで測定が完了しました。
中間測定後に再度工事を見直して、
施工に取り組んだのが良かったのか、
原因はあれかな?とかこれかな?と
色々と思う事はありましたが、
難易度がとても高いこの間取りで、0.42という数値が出て、
とても嬉しく思います。
大工さん、伸也監督、ありがとうございました!
そして、これならどんな外観、間取りでもC値0.6以下は大丈夫かなと思い、
とても自信になったのと、技術力がさらに向上したな・・・と、
良かった良かったとホッとしました。
ちなみに、C値0.4でも測定中は引き違い窓の「窓と窓が重なる」部分からは、
小さい風きり音が聞こえます。
(赤印の部分です。)
数値が良いと発生する現象です。
他にも玄関ドアが開けにくくなったりします。
(マンションだと気密性が高いのであるようです。)
例えばですが、キッチンの換気扇を動かすと気密測定をしている状態と同じになりますので、音がしたり、ドアが開けにくくなったります。
上記の様な事もありますので、現時点でC値は0.1と0.2ではなく、
0.6以下が適正かなと思っています。
また、断熱性と気密性が良いと室温にも表れます。
当日の朝にかけての外気温は2度前後でしたが、
室内は8.5度近くありました。
気密性、断熱性が良いと無暖房でもとても暖かいです。
良い工事をすると室温にもきっちり数値として現れますね。
本当に良かったです!
さて、現場は「太陽光パネル」の設置も終わり、
大工さん工事も終わり、
キッチンの据え付けが終わりました。
2階リビングなので、とても明るいです。
陽が差し込んでいるのが、分かりますね。
キッチンは「タッチレス水栓」と「フロントオープン食洗機付き」です。
太陽光パネルが設置してありますから、
発電した電気でお安く食洗器を動かすことが出来ますね。
節水をしながら楽家事が出来ますよ!
現場はこれから仕上げ工事に入ります。
天井と壁には「珪藻土」を施工しますので、仕上がりがとても楽しみです。
工事の様子はまたお伝えしたいと思います。
こちらの建物は長期優良住宅認定、東京ゼロエミ水準3、高気密高断熱、耐震等級3となっています。
分譲住宅として販売中ではありますが、
いつでも見学が可能で、完成したら完成見学会を開催する予定です。
家探しをしている方、
注文住宅の参考にしたい方、
高気密高断熱を体感したい方など是非見学にお越し下さい。
それでは、今日はここまでにしたいと思います。
本日もお読み頂きありがとうございました!
By accepting you will be accessing a service provided by a third-party external to http://kir634700.kir.jp/ideal/

