こんにちは。畠山です。
先週、上小山田町6号棟の中間の「気密測定」が終わりました。
今回の中間の気密測定は大苦戦をして色々と考える事がありました。
まず、現時点で「気密性」に関して、
断熱性を表す「Ua値」の様に国が定める基準はありませんが、
弊社では工事途中と完成時の2回、気密測定をしています。
少し古い話かもしれませんが「C値2以下」が高気密とか、
東京ゼロエミのように補助金が出る制度を鳥取県では「NE-ST」というかたちでやっておりC値1以下という基準や、
(詳しくは検索をお願いします。)
世界を見渡すと国によっては「C値の基準」があるようです。
下の表は少し古いですが、以前頂いたものです。
日本の「1、2地域」とは北海道とか東北の冬に寒い地域です。
東京は「6地域」が多いですが、一部「5地域」も含まれます。
建物の「気密性」が低いとどんなに断熱性を高めても、
隙間から温めたり冷やしたりした室温が逃げていきますので、
快適ではないですし、光熱費が多くかかることは想像が出来るかと思います。
それではC値をいくつにしたら良いか???というのは、
弊社の場合、
社内で協議をしながら勉強をしてメーカーさんと相談をして、
たしか、数年前に「C値1以下」くらいからスタートして現時点で「C値0.6以下」を保証値として家造りをしています。
さて、中間気密測定は室内の銀色の防湿シートを施工して、
外部は白色の透湿防水シートを施工した段階で行います。
直近で施工した住宅は30坪~70坪超と様々な大きさの住宅があり、
中間測定ではC値0.3~0.6と安定した数値が出ており、
今回の上小山田町6号棟の分譲住宅は延べ床面積87.97㎡ 26.55坪と、
直近に手掛けた住宅の大きさとしては大きくもなく、
C値は0.6を下回るだろうなーと思いながら、
現場へ向かったところ、まさかの一回目の測定が、
「C値1.4」としばらく見たことも無い、数値が出てしまいました・・・。
ムムムッ・・・・これはなんだ???
と思いつつ、
大きい穴でもあいていれば、そこを塞げば済む話ですが、
上の「隙間特性値」を見ると「1.1」とあり2以下であれば大きい穴が無いことを指すそうで、
ふさぎきれていない、小さい隙間があいている・・・という状態で、
これは久しぶりにアイディール大ピンチ図鑑に載る様な、出来事です。
どこが原因か・・・というのをみんなで考えながら、
気になるところを埋めて、
気密テープを数日かけて施工をしました。
結論から言うと、気密処理をした結果、C値は「0.8」になりました。
それにしても、いつもと同じ施工をしているのに、
今回はどうして数値が下がったのか。
考えてみると、
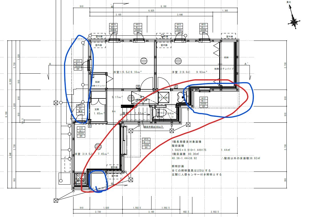
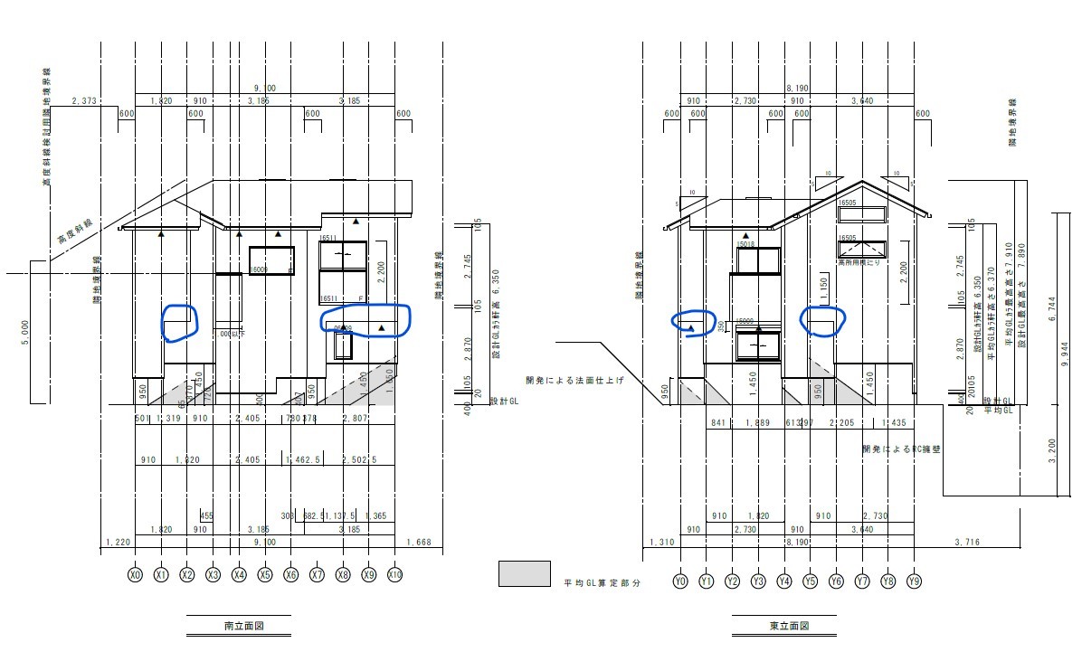
今回の建物は南側がカクカクしており(赤印)、
2階がオーバーハングと言って1階からはねだしていたり(青印)、
高基礎があり、
とても施工の難易度の高い建物となっています。
この難易度の高さは、
工事現場の最高責任者である「現場監督」であれば分かって頂けるかなーと勝手に思っています・・・。
ちなみに、難易度が高くても「長期優良住宅の認定」、
「東京ゼロエミ水準3」は取得していますので、
建物が高品質なのはもちろんのこと、税制優遇もありますのでご安心下さい!
さて話は戻り、「気密性」という事だけを考えれば、
真四角、長方形、窓少なめの建物であれば、
気密性は確保しやすいですが、
弊社は規格住宅ではなく、
今回の様に敷地に合わせた建物形状にしたり、
お客様が希望する間取りを建築する「自由設計」が基本です。
言い訳には出来ませんが、
ここまでカクカクしている住宅を施工したのは、
近年記憶に無いので、
間取り、外観によってここまでC値が大きく変わるという事が、
とても良い経験になりました。
さて、気密測定は下記の機械を使っておこないます。
ファンを外に向けて回し、
隙間があると室内に外気がはいってきます。
それがC値というかたちで数値化される、というイメージです。
測定器を何回か回して気密処理をした結果、
建物の気密性が良くなり、
室内の銀色の防湿シートが手前に引っ張られ隙間から空気が漏れるようになってしまったので、
これ以上の測定はやめて、
完成時(石膏ボード施工してから)に計測しようという事になりました。
分かりにくいのですが、
下の写真の赤丸の部分で、
銀色のシートと白い気密テープの間に隙間があいてきており、
矢印の方向に空気が漏れてしまっています。
また、青丸は防湿シートを固定するために「柱に打ち付けた針」があり、
そこから空気が漏れない様に、テープを貼っています。
かなりの数があり、地味な作業ですが、なかなか大変で、細かい作業です。
こういった事をしないと建物の「気密性」が確保出来ません。
まさに、快適に暮らして頂くための作業です。
それと、先ほど「窓」に少しふれましたが、測定中は窓からも外気が侵入しています。
窓が多いと気密性を確保しにくいというのが、気密測定をすると良く分かります。
窓が少ない方が良いというのは、あながち嘘ではありませんが、
窓があっても気密性を確保出来るくらいの技術力はほしいところです。
さて、中間気密測定ではC値0.8まで行きましたので、
保証値の0.6は達成出来るかな???と思っています。
ですが、先ほども記載した様に、建物形状によって大きく変わる場合がありますので、
今後の弊社の数値の保証の在り方を考えつつ、
間取り、特に外観によってはC値を変更することも有かなーと思いました。
(とは言っても、大きく増やすことは考えていません。)
ちなみに、何度かふれていますが、
弊社は断熱材をグラスウール、
その上に別張りの防湿シートを施工しています。
気密性を確保しやすい、「吹付断熱」というのもありますが、
比較検討した結果、グラス―ル+別張りの防湿シートが一番良いかな、
と言う結論に至っています。
おそらく、「気密性」だけみれば、「吹付断熱」」の方が良いと思いますが、
その話をすると長くなりますので、またの機会にしたいと思います!
最後に、好評分譲中のこちらの現場はいつでも見学が可能です。
2階のリビングは開放感があり、眺望も良く、陽当たりも良さそうです。
HPで価格を公開していますので、ご覧になってみて下さい!
注文住宅の参考にしたいお客様、
完成すると見えなくなる構造をみたいお客様、
どこから家造りを始めたら良いか分からないお客様、
そして、ご購入を検討しているお客様、
是非、見学にお越しください!
今日は長くなりました!
本日もお読み頂きありがとうございました!
By accepting you will be accessing a service provided by a third-party external to http://kir634700.kir.jp/ideal/

