中山2期5区画分譲地の土地販売価格と参考プランが出来ました!

こんにちは。畠山です。

ついに東京も梅雨入りしましたね。

今年は雨が多いのか、少ないのか、

工事現場は天気に工程が左右されますから、

梅雨の影響で工事の進捗がどうなるか気になるところです。

住宅の新築工事でいうと、

主に基礎工事、屋根工事、外装工事などが影響します。

造成工事でいうと、

全て影響してしまいます・・・。

現在造成工事中の中山2期は7/1から工事に入る予定ですが、

遅れないことを願うばかりです・・・。

さて、その中山2期5区画分譲ですが、

土地分譲の販売価格が決まり販売図面を作成しました。

この価格に建物代は入っていませんので、ご注意下さい!

5区画以外は敷地面積が50坪ちょっとあります。

この後、参考プランをお見せしますが、

高低差があり平坦地ではありませんが、

30坪を超える4LDKのプランが入りそうです。

現場はまだこんな感じなので(前回ブログ(6/2)より工事は進展していません・・・)、

宅地完成のイメージがわかないと思います。

完成は少し余裕を持って、11月としています。

物件は昨日から弊社のHPでのみ公開をしていて、

これからアットホームで公開をしていく予定です。


さて、気になる参考プランですが、

セカンド・プランニングさんにお願いをして1、3、5区画にプラン作成してもらいました。

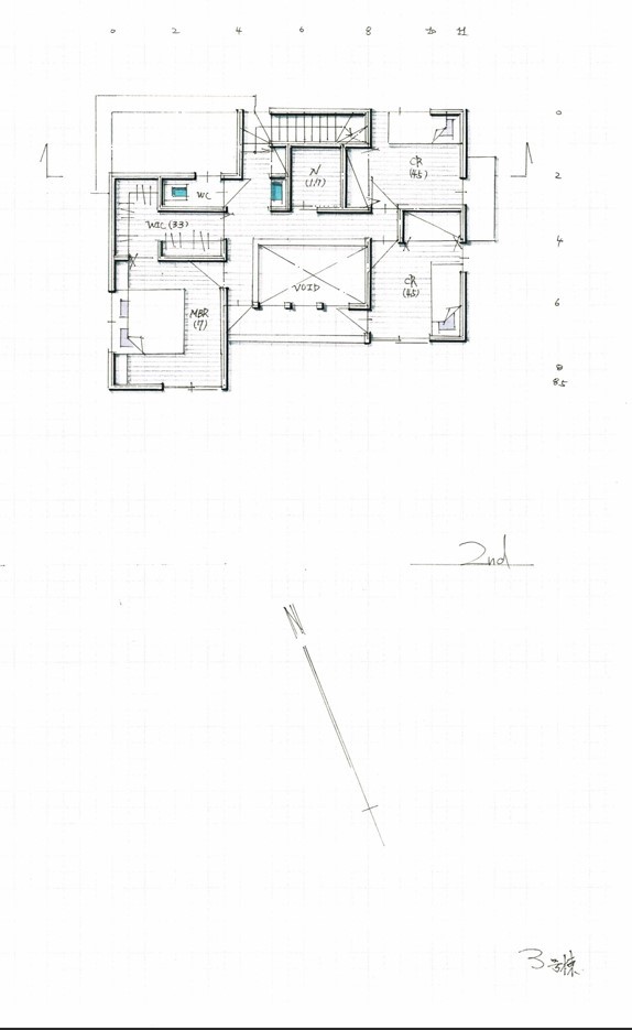
まず1区画の1階です。

2階です。

床面積は1階57.76㎡、2階が50.92㎡、合計108.68㎡の32.81坪、

4LDKのプランで2階にUBのあるプランになっています。

1階のリビングは21.5畳あり、

吹き抜けもありますので、

とても広く感じることが出来そうですね。

庭先も広くとれそうですね。


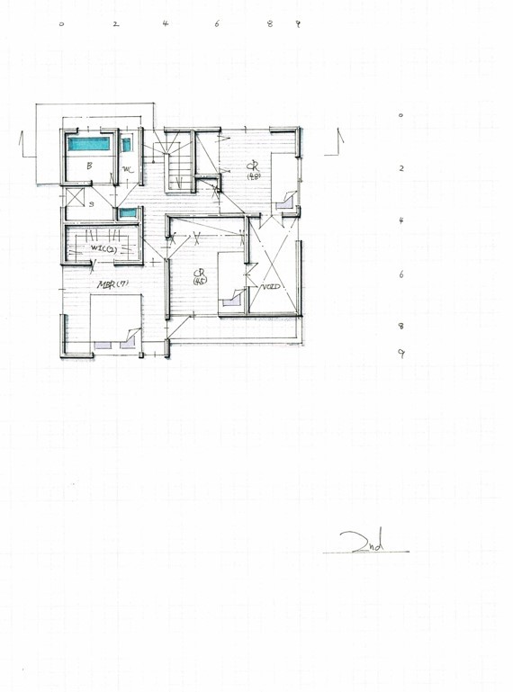
次に3号棟の1階です。

2階です。

こちらは1階63.76㎡、2階51.72㎡、合計115.48㎡の34.86坪の4LDKですが、

UBは1階となっています。

こちらも庭先がとても広いですね!

どちらのプランも4LDKで、吹き抜け有でプラン作成のお願いをしていますので、

吹き抜けを無くせば5LDKも出来そうですね。

という事で、4LDKや5LDKをご希望の皆様には希望の間取りが入るか、

ご検討を頂ければと思います。


次にモデル兼分譲住宅として、建築予定の5区画は3LDKの間取りになります。

1階です。

2階です。

こちらは1階54.03㎡、2階40.16㎡、合計94.19㎡の28.43坪、3LDKと上の2区画と比較すると、少し小ぶりですが、吹き抜けをなくすと4LDKになりますね。

4区画より建坪は小さいですが、建築費が高騰していますので、

少しコンパクトに建てて(28.43坪なので、小さくはありませんが。)、販売価格を抑えることが出来れば良いと思っています。

この分譲住宅も町田市上小山田町6号棟と同様に、

高気密高断熱、耐震等級3、長期優良住宅認定、東京ゼロエミ3、太陽光パネル付きで考えています。

着工は造成工事が完了する11月頃、

4月頃の完成に向けて動いていきたいと思います!

進捗はまたブログで紹介をさせて頂きます!

それでは、今日はここまでにしたいと思います。

本日もお読み頂きありがとうございました!

 

コメント

コメントはまだありません。コメントを投稿する最初の1人になって下さい
登録済みですか? ここからログイン
ゲスト
2026年05月28日(木)

By accepting you will be accessing a service provided by a third-party external to http://kir634700.kir.jp/ideal/

Instagram

facebook

X(twitter)

八王子市で30坪台の平屋・二世帯住宅の注文住宅を建てる工務店はアイディール

モデルハウスの予約はこちら
間取りプラン集ダウンロード