こんにちは。畠山です。
早速ですが、10/15(日)午後は事務所に人が不在となります。
御用の皆様は大変申し訳ありませんが、
明日の朝9時以降に会社に連絡をお願いします!
(隣接しているモデルも閉まっています。)
さて先日、J:COMホール八王子で開催するという、「お笑いカーニバル」に行ってきました。
初めての「お笑いライブ」です。
日経新聞の朝刊にチラシが入っていて、
面白そうだから行ってみようかなと思い、知人を誘い行ってきました。
着いてみると、たくさんの人がホールに満杯に・・・とは言えないくらいの観客数で、
わりと2階、3階が空いており、盛り上がるのかな?と思いましたが、
さすが芸人さん。
うまくその辺をいじりながら、会場を盛り上げていました。
今回は「人力舎」さんという会社が主催で、
7分くらいのネタを芸人さんが代わる代わる披露していました。
私は個人的にNHKの新人お笑い大賞で優勝した「スパイシーガーリック」さんの「トートバック」というネタが一番面白かったです。
あまりに面白かったので、帰ってきてYouTubeで再度見たのですが、
YouTubeで見るより生で見た方が面白い・・・ということが分かりました。
その他にも「小島よしお」さんの「そんなの関係ねぇ!」を生で見ることが出来て、
感激しつつ、会場を後にしました。
ちなみに、小島さんはステージで一緒に「そんなの関係ねぇ!」をやる人がいないか、
声をかけていましたが、残念ながら、誰もやる人がいませんでした・・・。
ちなみに、私は2階席だったので、さすがに行けませんでした!
ということで、機会があれば、
また行ってみようかなと思う様な体験が出来て、
心身がリフレッシュ出来ました!
そして、今週はいよいよ「有明テニスの森」で「ジャパンオープンテニス」が始まります。
昨年に続き、今年も見に行く予定です。
錦織選手がケガで出場できないのは少し残念ですが、
西岡選手や他のプロの試合を楽しんで見ようと思います!
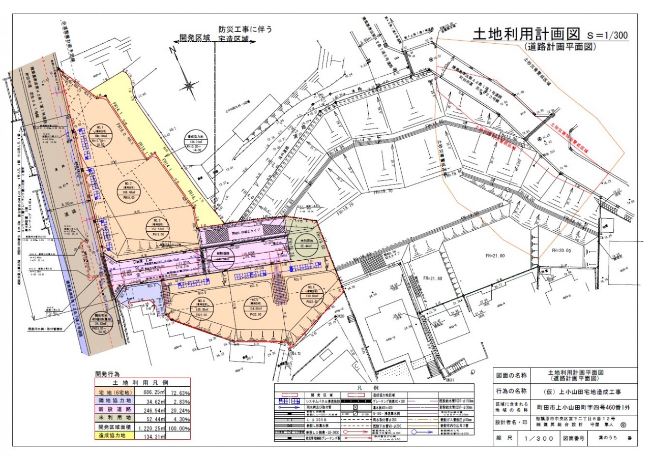
さて、1ヶ月ほど前にブログで紹介した町田市上小山田町6区画ですが、
先日、販売を開始しました。
下記が造成の計画図です。
№2は成約になりましたので、残り5区画です。
弊社のHPとアットホームで公開をしています。
現場は造成工事中で12月の完成を目指し工事を進めています。
下の写真で、左から№6、№5、№4です。
道路より1段上がっています。
道路と高低差がある土地形状となっています。
下から上を見るとこんな感じです。
もう少し離れたところから撮影するとこんな風景です。
現場に来て感じるのは、北側がぬけており、とても眺望が良さそうです。
弊社からは車で30分くらいの場所にあります。
建築条件無しで販売をしていますが、
もちろん、弊社で建築をすることは可能です。
ご興味がある方は、是非、お問合せください。
さて、最後にいつもの宣伝をさせて頂きますが、
町田市上小山田町の現場から車で20分ほど離れた、八王子市中山にモデル兼分譲住宅があります。
弊社で建築をする場合は参考にして頂けるかと思います。
現場はもうすぐ外構の2期工事が完了します。
現在は型枠ブロック工事まで終わりました。
まずは6区画から撮影をした写真です。
少し近づき、
重機の奥で庭を拡張する工事をしています。
これから土を入れて、芝生を敷いて、ウッドデッキを設置して工事完了です。
室内から見るとこんな感じです。
本当に庭が広いです。
完成がとても楽しみです!
毎回この告知になり恐縮ですが、
完成見学会を下記の日程で開催をしますので、
ご興味がある方は是非、見学にいらしてください!
ご購入を検討の方はこちらもご確認下さい。
寒い季節にとても快適な高気密高断熱の家を体感したい方、
注文住宅をご検討していて家造りの参考にしたい方、
希望の間取りを叶え自由設計の耐震等級3の家を建てたい方、
性能の良い分譲住宅の購入を検討している方など、
ご興味がある方は是非、見学に来てみて下さい。
それでは、今日はここまでにしたいと思います。
本日も最後までお読み頂き、ありがとうございました!
By accepting you will be accessing a service provided by a third-party external to http://kir634700.kir.jp/ideal/

